Ковыряться зимой в гараже с машиной не очень весёлое занятие. А между тем, можно сделать для гаража печку, которая работает на "халявной" отработке и ковырятся с любимой судорогой

в любую погоду. Ничего особенно сложного в конструкции нету.
Ссылку на сайт где выложен чертёж и описание куда то дел. Если найду выложу.
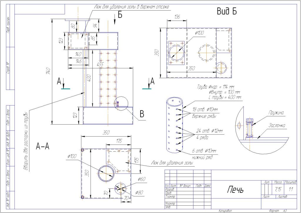
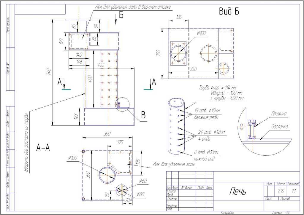
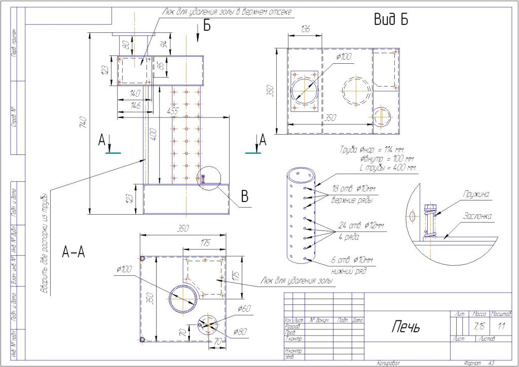
Поскольку сам чертёж у меня есть то выкладываю его и парочку фоток моей печки, правда она у меня немного модернизирована.
ЗЫ. Печка не коптит и не воняет. Точнее есть небольшой запах (из трубы) когда разжигаешь и когда гасишь.
- Вложения
-

- Чертёж
- 1.jpg (91.1 КБ) Просмотров: 2450
-

- Фотка не совсем удалась.
- 2.jpg (79.9 КБ) Просмотров: 2485
-

- 3.jpg (61.08 КБ) Просмотров: 2418